Прихожая — первое место, которое встречает гостей и членов семьи, и её оформление влияет на общее впечатление о доме. В этой статье мы расскажем, как сделать шкаф в прихожую своими руками, используя старую мебель и простые чертежи с размерами. Вы узнаете, какие материалы подойдут для создания функциональной и стильной мебели, а также получите пошаговые инструкции по изготовлению, что поможет сэкономить и добавить индивидуальности в интерьер.
Типы прихожей
Не существует строгой классификации для прихожей, касающейся ее дизайна или мебели. Основное, на что можно опираться, это функции, которые она должна выполнять:
- Хранение и размещение обуви.
- Размещение верхней одежды.
- Возможность хранения головных уборов.
- Дополнительные элементы, такие как зеркало, скамейка или подставка для зонтов. Иногда в прихожей можно встретить небольшие комоды или трюмо.
Важно отметить! Большинство из перечисленных функций можно организовать с помощью зонирования, когда отдельные элементы, например, вешалка, предназначены для хранения одежды, а обувь располагается на специальной полке. Также можно рассмотреть вариант создания шкафа для прихожей своими руками, который может взять на себя эти функции полностью или частично.
Создание мебели для прихожей своими руками становится все более популярным среди любителей DIY. Эксперты отмечают, что этот процесс не только позволяет сэкономить средства, но и дает возможность проявить креативность. При правильном подходе можно создать уникальные предметы, которые идеально впишутся в интерьер.
Специалисты рекомендуют начать с тщательного планирования: важно учесть размеры пространства и функциональные потребности. Использование качественных материалов, таких как дерево или МДФ, обеспечит долговечность и эстетичный вид. Также стоит обратить внимание на фурнитуру, которая должна быть надежной и удобной в использовании.
Кроме того, эксперты подчеркивают важность соблюдения техники безопасности при работе с инструментами. В результате, создание мебели своими руками не только украсит прихожую, но и станет увлекательным и полезным занятием.
https://youtube.com/watch?v=JbNbUAU0Hrc
Типовая прихожая
На сегодняшний день наиболее популярным решением остаётся комплект из крючков для верхней одежды и полки для головных уборов. Обычно в такую «композицию» входит также подставка для обуви. В некоторых случаях могут добавляться комод или небольшое зеркало, однако в большинстве случаев это просто различные комбинации этих элементов.
Чаще всего крючки и полка объединяются в одно целое. В любом случае, вешалка занимает ключевую позицию. Шкаф в таких интерьерах встречается довольно редко.
| Элемент мебели | Необходимые материалы | Инструменты |
|---|---|---|
| Вешалка для одежды | Деревянные бруски, доски, крючки, саморезы | Пила, дрель, шуруповерт, рулетка, карандаш, наждачная бумага |
| Тумба для обуви | Фанера, ДСП, мебельные петли, ручки, саморезы | Лобзик, дрель, шуруповерт, рулетка, карандаш, кромкооблицовочная лента (по желанию) |
| Зеркало в раме | Зеркальное полотно, деревянные рейки, клей для зеркал, крепления | Пила, стусло, рулетка, карандаш, струбцины |
| Полка для мелочей | Деревянные доски, кронштейны, саморезы | Пила, дрель, шуруповерт, рулетка, карандаш, уровень |
| Банкетка с хранением | Фанера, ДСП, поролон, ткань, мебельные петли, саморезы | Лобзик, дрель, шуруповерт, степлер мебельный, ножницы, рулетка, карандаш |
Интересные факты
Вот несколько интересных фактов о создании мебели для прихожей своими руками:
-
Экономия и индивидуальность: Создание мебели своими руками позволяет не только сэкономить деньги, но и создать уникальные предметы, которые идеально впишутся в ваш интерьер. Вы можете выбрать материалы, цвета и размеры, которые соответствуют вашему стилю и потребностям.
-
Экологичность: Используя переработанные или натуральные материалы, вы можете сделать свою прихожую более экологичной. Например, старые деревянные паллеты можно превратить в стильные полки или скамейки, что не только уменьшает количество отходов, но и придаёт мебели особый шарм.
-
Функциональность и многофункциональность: Прихожая часто является ограниченным пространством, и создание мебели своими руками позволяет максимально эффективно использовать доступное место. Например, вы можете сделать скамейку с ящиками для хранения обуви или комбинированный шкаф, который будет служить и местом для хранения, и элементом декора.
https://youtube.com/watch?v=T1oEdOeUeOU
Оригинальная, нестандартная
Под «нестандартностью» чаще всего понимается прихожая очень маленьких размеров, реже – уникальное оформление и индивидуальный стиль. В таких условиях ключевым становится рациональное использование свободного пространства и его экономия. Если шкаф и устанавливается в коридоре, то он, как правило, имеет нестандартные формы (например, узкий или угловой шкаф, который можно собрать самостоятельно).
При наличии ниши или кладовой, их пространство используется максимально эффективно. В основном применяются различные модульные решения: подвесная штанга для одежды, откидное сиденье и узкая полка-тумба, которая одновременно служит подставкой для обуви и комодом.
С угловыми шкафами
Можно рассмотреть несколько вариантов:
- Треугольная форма. Чаще всего это равносторонний или равнобедренный треугольник.
- Трапециевидная конструкция. Такой шкаф для прихожей, сделанный своими руками, проектируется так, чтобы большая сторона находилась вдоль несущей стены.
- «Г»-образный вариант. Длина и конфигурация зависят от площади помещения и его оформления.
- Пятиугольная форма. В сечении напоминает стилизованный драгоценный камень.
В большинстве случаев основой такого шкафа служит несущий каркас, изготовленный из ДСП. Иногда используется решение с округлым центральным фасадом (для треугольных и пятиугольных моделей). В качестве дополнения можно добавить комод или тумбу-сиденье, расположенную у стены.
Шкафы-купе
Наиболее распространенным вариантом является нишевый шкаф, который может быть установлен заподлицо со стеной или занимать всю длину. Однако отдельно стоящие модели также встречаются довольно часто.
К числу преимуществ таких решений можно отнести их высокую эффективность в организации пространства. Кроме того, концепция «всё в одном» позволяет создать прихожую в минималистическом стиле, что является отличным решением для небольших помещений.
Шкаф в прихожую своими руками: выбор материала
Современная мебель в основном изготавливается из древесины. Металлические, пластиковые и стеклянные элементы используются либо как вспомогательные детали (например, крепеж), либо для декоративного оформления. Исходя из практических нужд, для создания шкафа могут понадобиться следующие материалы:
- ДСП. Основной строительный материал.
- МДФ. Отлично подходит для различных столешниц и оснований.
- Фанера. Обычно используется для вспомогательных задач.
- ДВП. Применяется в качестве задней стенки.
- Брус. Необходим для создания каркаса в некоторых конструкциях.
- Зеркало. Используется только в качестве заполнителя для дверок.
Иногда в этот список добавляют гипсокартон, но его следует использовать исключительно для отделочных работ.
Важно! Если замеры были выполнены с высокой точностью, имеет смысл заказать распилку конструктивных элементов в специализированной мастерской, включая обработку кромок.
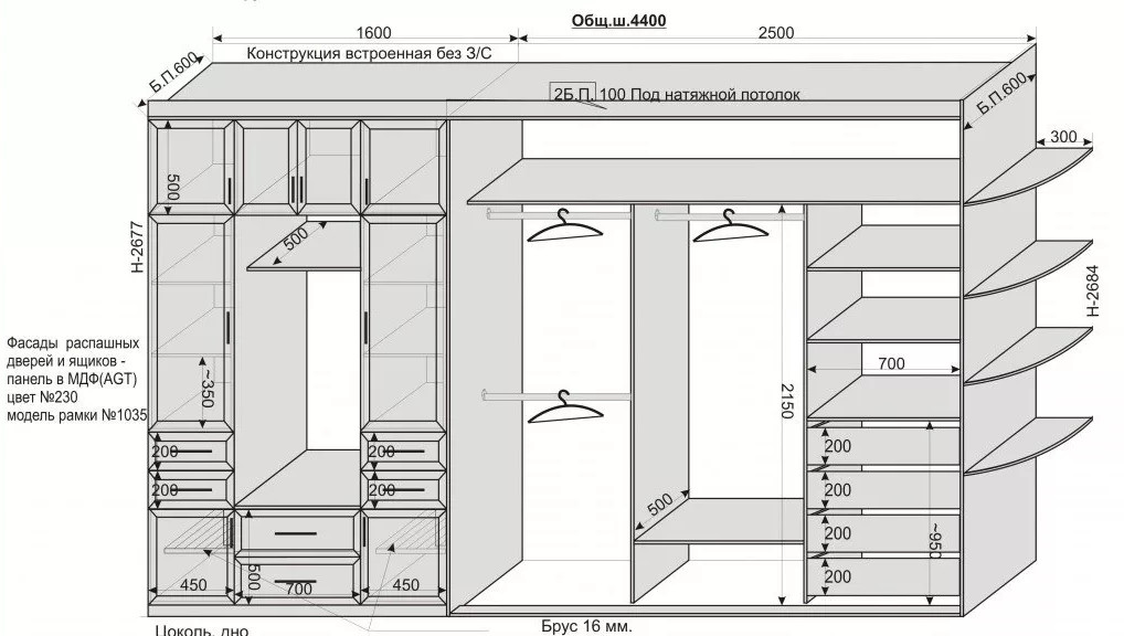
Как сделать прихожую своими руками из старой мебели чертежи и проектирование
Первым шагом в процессе проектирования является выбор места для установки шкафа. Это определяет, какие именно замеры необходимо произвести и насколько они должны быть детализированными. Например, если шкаф планируется разместить в нише, следует измерить размеры всех стен на различных высотах. В случае, если шкаф будет стоять просто у стены, достаточно будет определить желаемую ширину и высоту.
При создании чертежей важно не только знать особенности проектирования мебели (например, допуски на тип кромки или ширину реза пилой), но и уметь визуализировать конструкцию по отдельным элементам.
В шкафу основное внимание уделяется гардеробной секции, где будет храниться верхняя одежда. Количество и размер плечиков помогут определить глубину шкафа, которая обычно составляет половину от общей ширины. Остальное пространство можно использовать для хранения мелочей: полки для перчаток, хозяйственный отсек для швабры и веника, место для гладильной доски, шкафчики и другие элементы.
Все эти детали необходимо тщательно отобразить на чертеже и выстроить последовательность размеров.
Важно помнить! Часто для создания нового шкафа не обязательно начинать с нуля. Если в доме есть ненужный гарнитур или сервант в хорошем состоянии, вполне возможно, что их можно адаптировать для нового шкафа, а недостающие элементы просто докупить.
Необходимые инструменты
Для самостоятельной сборки шкафа в прихожую вам потребуется стандартный набор инструментов:
- Отвертки и ключи для крепежных элементов.
- Дрель с комплектом сверл.
- Шуруповерт.
- Ножовка.
- Ручные инструменты: киянка, молоток, струбцина, угольник и уровень.
- Мелкие принадлежности: рулетка, линейка, карандаш, макетный нож, керн.
В зависимости от выбранной конструкции могут понадобиться: крючки, мебельная фурнитура (ручки, дверные петли, замки) или направляющие для выдвижных ящиков. Также важно учитывать тип соединений элементов конструкции и заранее подготовить: метизы, конфирматы, рафиксы, мебельные уголки и заглушки различных видов.
Приступая к работе: порядок действий
Качество конечного изделия зависит от двух ключевых факторов: чертежа и фурнитуры. Если чертеж может иногда преподнести неожиданные моменты, то выбор фурнитуры требует особого внимания — стоит остановиться на надежных и проверенных вариантах.
В общем, процесс сборки шкафа для прихожей своими руками может включать следующие этапы:
- Установка основной конструкции. Если речь идет о каркасном варианте, сначала необходимо собрать основную раму, а затем укрепить ее с помощью дополнительных продольных или вертикальных перемычек. В некоторых случаях каркас монтируется прямо на пол. Для бескаркасной модели следует начинать с установки боковых стенок.
- Монтаж перемычек и вспомогательных элементов. Для этого используются специальные крепежные элементы, такие как конфирматы или минификсы.
- Установка полок и перегородок.
- Монтаж петель или направляющих.
- Навешивание или установка двери. В случае шкафа-купе сначала устанавливается верхняя часть двери с нажимом, после чего нижние ролики помещаются в пазы направляющих.
- Если конструкция будет стоять отдельно от стены, заднюю часть шкафа необходимо закрыть ДВП.
- Регулировка, подгонка и проверка работы всех механизмов.
Таким образом, обустроить свою квартиру самостоятельно — это вполне выполнимая задача. При наличии настойчивости и базовых навыков работы с инструментами, создать шкаф для прихожей своими руками вполне реально. Пусть это не будет уникальным дизайнерским решением или шедевром инженерной мысли, но такой шкаф добавит уют в ваш дом и поможет навести порядок.
Видео: шкаф-купе в прихожую своими руками
https://youtube.com/watch?v=JQ71DWLXJ-M
50 вариантов дизайна шкафов для прихожей
Уход за мебелью в прихожей: советы и рекомендации
Прихожая – это первое место, которое видят гости, входя в ваш дом, и она часто подвергается интенсивному использованию. Поэтому уход за мебелью в этом пространстве особенно важен. Правильный уход поможет сохранить внешний вид и функциональность мебели на долгие годы. Рассмотрим основные аспекты ухода за различными типами мебели в прихожей.
1. Регулярная чистка
Первый и самый важный шаг в уходе за мебелью – это регулярная чистка. Пыль и грязь могут накапливаться на поверхности, что не только портит внешний вид, но и может привести к повреждениям. Используйте мягкую ткань или микрофибру для протирания мебели. Для деревянных поверхностей подойдут специальные полироли, которые помогут защитить и сохранить блеск.
2. Защита от влаги
Прихожая часто подвергается воздействию влаги, особенно в дождливую погоду, когда обувь может оставлять лужи. Чтобы защитить мебель от влаги, используйте подставки для обуви и коврики. Если мебель сделана из дерева, рекомендуется периодически обрабатывать ее специальными водоотталкивающими средствами.
3. Устранение пятен
На мебели могут появляться пятна от обуви, грязи или других загрязнений. Важно действовать быстро, чтобы предотвратить их впитывание. Для удаления пятен используйте мягкие моющие средства, которые не содержат агрессивных химикатов. Для деревянной мебели лучше всего подходят специальные средства, предназначенные для ухода за деревом.
4. Проверка креплений и механизмов
Если в прихожей есть мебель с механизмами (например, шкафы-купе или выдвижные ящики), регулярно проверяйте их на предмет исправности. Убедитесь, что все крепления надежно зафиксированы, а механизмы работают без заеданий. При необходимости смазывайте движущиеся части специальными маслами или силиконовыми спреями.
5. Защита от солнечного света
Прямые солнечные лучи могут вызывать выгорание и изменение цвета мебели. Если ваша прихожая освещена солнечными лучами, подумайте о том, чтобы использовать шторы или жалюзи, которые помогут защитить мебель от ультрафиолетового излучения.
6. Правильное размещение
При размещении мебели в прихожей учитывайте не только эстетические, но и функциональные аспекты. Избегайте установки мебели в местах, где она будет подвержена постоянному механическому воздействию. Например, не ставьте шкафы слишком близко к двери, чтобы избежать повреждений от открывающейся двери.
7. Периодическая реставрация
Со временем даже самая качественная мебель может требовать реставрации. Если на поверхности появились царапины или сколы, не спешите расставаться с мебелью. Существуют специальные наборы для восстановления поверхности, которые помогут вернуть мебели первоначальный вид. Для деревянной мебели можно использовать морилки и лаки, а для мягкой мебели – специальные средства для чистки и восстановления ткани.
Следуя этим простым рекомендациям, вы сможете продлить срок службы мебели в прихожей и сохранить ее привлекательный внешний вид. Уход за мебелью – это не только забота о внешнем виде, но и инвестиция в комфорт и уют вашего дома.
Вопрос-ответ
Какие материалы лучше использовать для изготовления мебели в прихожую?
Для изготовления мебели в прихожую рекомендуется использовать прочные и влагостойкие материалы, такие как МДФ, фанера или массив дерева. Эти материалы обеспечивают долговечность и устойчивость к повреждениям. Также стоит обратить внимание на отделочные материалы, такие как лак или краска, которые защитят мебель от влаги и загрязнений.
Как правильно спроектировать мебель для прихожей?
При проектировании мебели для прихожей важно учитывать размеры пространства и функциональные потребности. Начните с измерения площади, затем определите, какие элементы вам нужны: шкаф для одежды, полки для обуви, вешалки и т.д. Рекомендуется создать эскиз или использовать специальные программы для 3D-моделирования, чтобы визуализировать конечный результат.
Какие инструменты понадобятся для сборки мебели в прихожую?
Для сборки мебели в прихожую вам понадобятся основные инструменты, такие как дрель, отвертка, уровень, рулетка, а также пила для резки материалов. Если вы планируете использовать более сложные соединения, могут понадобиться дополнительные инструменты, такие как струбцины и шлифовальная машина. Не забудьте также о средствах индивидуальной защиты, таких как очки и перчатки.
Советы
СОВЕТ №1
Перед началом работы тщательно продумайте дизайн и функциональность мебели. Измерьте пространство в прихожей и определите, какие элементы вам нужны: шкаф для обуви, вешалка для верхней одежды или полки для аксессуаров. Это поможет избежать ненужных затрат и сделать мебель максимально удобной.
СОВЕТ №2
Выбирайте качественные материалы, которые будут устойчивы к износу и легко чистятся. Дерево, МДФ или фанера — отличные варианты для изготовления мебели в прихожую. Не забывайте также о фурнитуре: выбирайте надежные ручки и петли, чтобы ваша мебель служила долго.
СОВЕТ №3
При создании мебели учитывайте стиль вашего интерьера. Используйте цветовые решения и отделку, которые гармонично впишутся в общую концепцию прихожей. Это поможет создать уютную и стильную атмосферу.
СОВЕТ №4
Не забывайте о безопасности. Если вы работаете с инструментами, обязательно используйте защитные очки и перчатки. Также убедитесь, что мебель будет устойчивой и надежно закрепленной, чтобы избежать травм и повреждений.








