Сборка шкафа-купе своими руками позволяет сэкономить и создать уникальный элемент интерьера. В этой статье представлена пошаговая инструкция, которая поможет избежать распространенных ошибок и упростит процесс. Следуя нашим рекомендациям, вы успешно соберете шкаф и получите удовлетворение от выполненной работы, а также уверенность для будущих проектов.
Подготовка всех деталей шкафа-купе
После того как вы выбрали комнату для установки мебели, необходимо подготовить пространство. Убедитесь, что есть достаточно места для размещения всех компонентов и инструментов. Распаковывайте мебель осторожно, чтобы избежать повреждений деталей.
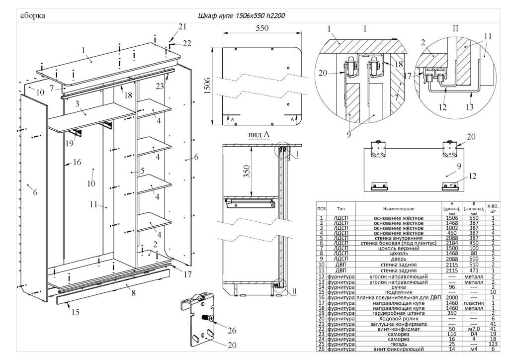
Чтобы предотвратить появление царапин на шкафу и полу, рекомендуется постелить упаковочный материал или любую ткань на пол. Затем найдите инструкцию по сборке. Каждая деталь мебели и фурнитура имеют маркировку от производителя. На схеме цифры соответствуют различным элементам шкафа.
Важно следовать последовательности сборки, иначе вам придется разбирать неправильно собранные части и начинать заново. После распаковки:
- Проверьте наличие всех комплектующих. Мебель должна быть в целостности и полностью соответствовать заявленным характеристикам производителя;
- Разложите детали в порядке, в котором они будут собираться. Некоторые элементы могут выглядеть схоже, поэтому важно не перепутать их. Это касается верхней и нижней части, а также тыльной и лицевой сторон;
- Мелкие детали, такие как саморезы и фурнитура, лучше всего хранить отдельно в коробке.
Во время сборки ничто не должно отвлекать вас. Все лишние предметы, если это возможно, лучше убрать в другое помещение.
Обратите внимание! Шкаф собирается в горизонтальном положении, поэтому потребуется достаточно свободного пространства.
Собрать шкаф-купе самостоятельно — задача, которая может показаться сложной, но с правильным подходом и подготовкой это вполне осуществимо. Эксперты рекомендуют начать с тщательного планирования: важно заранее изучить инструкцию и убедиться, что все детали на месте. Использование качественных инструментов, таких как отвертка и уровень, значительно упростит процесс.
При сборке стоит уделить внимание правильной установке направляющих и дверей, так как от этого зависит функциональность шкафа. Специалисты также советуют работать в команде, чтобы избежать лишних усилий и ускорить процесс. Наконец, не стоит забывать о безопасности: при работе с тяжелыми элементами лучше использовать защитные перчатки. Следуя этим рекомендациям, можно успешно справиться с задачей и получить стильный и практичный шкаф-купе.
https://youtube.com/watch?v=zWkSUHb_OUU
Собираем каркас шкафа
Первым этапом будет установка основания. Плиту необходимо закрепить к опоре, расположенной вдоль длинной стороны мебели. Для этого используются еврошурупы. Затем следует правильно разместить внутренние перегородки. В нижней части имеются специальные отверстия, в которые нужно установить шканты.
В нижней части подиума предусмотрены не сквозные проемы для этих стержней. Далее необходимо соединить их, вставив в отверстия. Чтобы обеспечить устойчивость конструкции, следует закрепить полки, которые выполняют роль ребер жесткости. Для этого применяются конфирматы. Важно на этом этапе тщательно закрутить все элементы.
На завершающем этапе сборки каркаса необходимо установить боковые панели и верхнюю часть. Эти элементы монтируются одновременно, так как качество их установки будет влиять на функциональность всей конструкции.
| Этап сборки | Описание действия | Необходимые инструменты и материалы |
|---|---|---|
| 1. Подготовка и планирование | Определите место установки, размеры шкафа, количество секций и наполнение. Составьте чертеж или используйте готовый проект. | Рулетка, карандаш, бумага, калькулятор, уровень. |
| 2. Распаковка и проверка комплектующих | Аккуратно распакуйте все детали, проверьте их наличие по списку и отсутствие повреждений. | Ножницы, канцелярский нож. |
| 3. Сборка каркаса | Соберите боковые стенки, дно, крышу и заднюю стенку шкафа. Используйте конфирматы или евровинты. | Шуруповерт (или отвертка), шестигранник (если есть конфирматы), молоток (для задней стенки). |
| 4. Установка внутренних элементов | Закрепите полки, штанги для одежды, выдвижные ящики и другие внутренние элементы согласно проекту. | Шуруповерт (или отвертка), уровень. |
| 5. Монтаж направляющих для дверей | Установите верхние и нижние направляющие для раздвижных дверей. Важно соблюдать горизонтальность. | Шуруповерт (или отвертка), уровень, рулетка. |
| 6. Установка раздвижных дверей | Аккуратно вставьте двери в направляющие. Отрегулируйте их положение, чтобы они легко скользили и плотно закрывались. | Отвертка (для регулировки роликов). |
| 7. Установка фурнитуры | Прикрепите ручки, доводчики (если предусмотрены) и другую фурнитуру. | Шуруповерт (или отвертка). |
| 8. Финальная проверка и регулировка | Проверьте устойчивость шкафа, работу всех механизмов, отсутствие зазоров. При необходимости произведите окончательную регулировку. | Уровень, отвертка. |
Интересные факты
Вот несколько интересных фактов о том, как самостоятельно собрать шкаф-купе:
-
Планирование пространства: Перед началом сборки шкафа-купе важно тщательно спланировать его размещение. Учитывайте не только размеры комнаты, но и освещение, чтобы двери шкафа не мешали открываться и не загораживали свет. Правильное планирование поможет избежать ошибок и сэкономить время.
-
Использование качественных материалов: При сборке шкафа-купе важно выбирать качественные материалы, такие как ДСП или МДФ, которые обеспечат долговечность конструкции. Также стоит обратить внимание на фурнитуру: качественные направляющие и петли значительно упростят процесс эксплуатации шкафа.
-
Сборка без профессионалов: Многие люди считают, что собрать шкаф-купе самостоятельно невозможно, однако современные производители предлагают подробные инструкции и схемы. С помощью базовых инструментов и немного терпения можно успешно справиться с этой задачей, что не только сэкономит деньги, но и подарит чувство удовлетворения от выполненной работы.
https://youtube.com/watch?v=70o81LfaAtA
Установка стенок
Сначала следует аккуратно обрезать края боковых панелей, чтобы они плотно прилегали к задней стене. Рекомендуется также отшлифовать торцы стенок для достижения лучшего внешнего вида. С помощью уровня можно добиться идеального выравнивания боковых частей.
В некоторых случаях шкаф может продаваться без боковых панелей, что подразумевает его установку между стенами. В такой ситуации необходимо сделать разметку, чтобы прикрепить полки на нужной высоте. Затем с помощью перфоратора следует просверлить отверстия в стенах немного ниже уровня разметки. После этого вставляются крепежные элементы, и устанавливаются уголки, на которые будут монтироваться полки. По уровню этих уголков нужно установить задние стойки.
Монтаж внутренних перегородок
По краям перегородок мебели предусмотрены небольшие отверстия, в которые необходимо вставить чопики для усиления деревянных соединений. Далее шканты следует совместить с отверстиями в основании. Таким образом, вертикальные перегородки будут установлены на свои места.
Крайне важно, чтобы прикрепленные перегородки оставались в вертикальном положении до завершения сборки шкафа. Для повышения жесткости конструкции рекомендуется закрепить детали с помощью шурупов или саморезов. Также можно использовать вставку в пазы.
При установке элементов во время сборки конструкции следует строго придерживаться чертежа, располагая их горизонтально или вертикально. На каждом этапе необходимо следить за тем, чтобы соединительные части не перекосились. Если потолки в комнате низкие, лучше проводить работы в вертикальном положении, чтобы не возникло необходимости поднимать готовый шкаф.
Крепим полки
Сначала необходимо установить полкодержатели и направляющие в каркас, а затем можно приступать к размещению полок. Процесс крепления не должен вызвать затруднений, главное — следить за горизонтальными уровнями. В противном случае неравномерное распределение нагрузки может привести к перегрузке одного из креплений, что, в свою очередь, может вызвать падение полки и деформацию стенки шкафа.
Наиболее простым способом сборки шкафа-купе является закрепление полок с помощью саморезов. Вы можете выбрать любые варианты, например, с потайными головками или пресс-шайбами. Для установки полок вам понадобятся шуруповерт и отвертка. Важно аккуратно сделать монтажные отверстия, чтобы избежать появления трещин.
Еврошурупы являются популярным выбором для установки полок. Наиболее распространенные размеры — пятьдесят и семьдесят пять миллиметров.
Лучше всего монтировать полки с использованием шестигранника и конфирматного сверла. Это позволит одновременно просверлить обе части под резьбу шляпки и винта. Преимущества данного метода крепления на евровинты заключаются в следующем:
- возможность надежной стяжки элементов;
- хорошая фиксация;
- более эстетичный вид по сравнению с саморезами.
Установка задней стенки
Следующим этапом сборки станет установка панелей, которые будут надежно закреплены на задней стенке мебели. Эти панели выполняют функцию прочной перегородки, обеспечивая стабильность всей конструкции на протяжении всего срока службы.
Часто лицевая сторона панелей оформлена цветным ламинированием, что придает им эстетичный вид. Закрепление осуществляется с помощью небольших гвоздиков, которые следует аккуратно вбивать в торцы полок и внутренних перегородок.
Важно точно определить место для забивания гвоздиков. Поскольку обратная сторона элементов шкафа остается скрытой, неправильное размещение может привести к повреждениям, что негативно скажется на внешнем виде изделия. Обычно заднюю стенку крепят с помощью саморезов, что является более удобным вариантом по сравнению с простым прибиванием.
Устанавливаем направляющие
Одним из ключевых этапов при сборке является установка рельсов для дверей. Нижняя часть рельса оборудована двумя желобами, которые обеспечивают плавное движение роликов. В верхней части также предусмотрены два отсека. В первую очередь необходимо просверлить отверстия для шурупов, которые будут использоваться для крепления к основанию.
При создании таких отверстий обязательно выполняется фаска, предназначенная для удобного завинчивания шурупов. Для каждой планки будет достаточно четырех отверстий. Далее следует выполнить следующие шаги:
- зафиксировать нижний рельс, предварительно разметив места для крепежа;
- оставить два с половиной сантиметра от края основания до переднего рельса;
- чтобы избежать заклинивания дверей и обеспечить их равномерное движение, шкаф следует установить горизонтально;
- верхний рельс монтируется аналогично, но отверстия следует делать в шахматном порядке.
В качестве элементов крепления используются шурупы, которые идут в комплекте с мебельным изделием.
Важно! Расстояние от края рельса до передней части крышки должно составлять не менее двух миллиметров.
Монтаж штанги и фурнитуры
На данном этапе сборки происходит установка штанги, которая обеспечивает удобное распределение одежды. Эти элементы помогают избежать сминания вещей и максимально эффективно использовать внутреннее пространство.
Важно учесть, что штанга должна полностью помещаться на опорных плоскостях держателя. Для овальной модели длина штанги соответствует расстоянию между боковыми стенками проема. В случае круглой конструкции она должна быть немного короче расстояния между стенками.
Крепление держателя к основанию осуществляется с использованием подходящих винтов. Сначала необходимо определить места для установки первого кронштейна, который фиксируется тремя саморезами. Для этого нужно просверлить отверстия и надежно закрутить саморезы.
После сборки конструкции следует провести примерку и выровнять её по горизонтали. Только после этого можно сделать отметки и закрепить с помощью саморезов.
Монтаж дверей
Сначала необходимо проверить желоба, находящиеся в нижней части. Они должны быть свободны от загрязнений, иначе ролики не смогут нормально функционировать. Рекомендуется дополнительно убедиться в надежности всех соединительных элементов. Затем дверь устанавливают в верхний рельс, при этом концевые ролики в нижнем желобе должны быть правильно расположены.
Аналогичным образом устанавливаются и остальные полотна. В инструкции, прилагаемой к изделию, все подробно описано, поэтому стоит следовать схемам и описаниям.
Обратите внимание на следующие моменты:
- сначала фиксируют верхнюю направляющую, оставляя нижнюю часть без изменений;
- затем вставляют двери, отступив от нижней направляющей.
Полотна должны быть выровнены, только после этого можно закреплять нижнюю часть. При установке дверей сначала заводится верхняя часть, а затем нижняя. С помощью шестигранного ключа обязательно отрегулируйте наклон дверей.
После того как вы убедитесь в правильности установки дверей, можно приступить к оснащению мебели специальными уплотнительными щетками. Не стоит трогать участок оклейки, иначе крепеж может не сработать должным образом. Обычно, покупая шкаф-купе, двери уже собраны производителем. Однако иногда может возникнуть необходимость изучить инструкцию для самостоятельной сборки шкафа.
Завершив работу, разместите наружные крючки по бокам панелей, если это предусмотрено моделью. Также не забудьте убрать место, где собирался шкаф. После этого можно спокойно организовать вещи в собранном вами купе.
Подведение итогов
Как видно из описанного процесса сборки шкафа-купе, это занятие не представляет особой сложности. Для успешного выполнения работы вам понадобятся желание, базовый набор отверток, инструментов и рулетка. Следуя пошаговой инструкции, даже новичок сможет справиться с задачей на все сто.
Первым шагом при сборке шкафа станет подготовка деталей после распаковки. Важно аккуратно разложить все элементы по местам, а мелкие детали лучше сразу поместить в отдельную коробку. После этого можно приступать к созданию каркаса, на который будут установлены полки, внутренние перегородки, фурнитура и направляющие.
Если у вас возникают сомнения по поводу правильности выполнения каждого этапа, не стесняйтесь периодически сверяться с чертежом — это поможет вам выполнить работу качественно. Кроме того, в интернете доступно множество обучающих видео, которые могут оказаться весьма полезными.
Видео: инструкция по сборке шкафа-купе
https://youtube.com/watch?v=ERhlRWB1jkw
Фото 50 вариантов дизайна шкафов-купе в интерьере
Советы по уходу за шкафом-купе
Уход за шкафом-купе — это важный аспект, который поможет продлить срок службы мебели и сохранить её эстетический вид. Правильный уход включает в себя регулярную чистку, защиту от повреждений и соблюдение рекомендаций по эксплуатации.
1. Регулярная чистка
Для поддержания шкафа в хорошем состоянии необходимо регулярно проводить его чистку. Используйте мягкую ткань или микрофибру для удаления пыли с поверхности. Избегайте абразивных средств и жестких щеток, которые могут повредить покрытие. Для более тщательной очистки можно использовать специальные средства для мебели, которые подходят для вашего типа материала (дерево, МДФ, ЛДСП и т.д.).
2. Устранение загрязнений
Если на поверхности шкафа появились пятна, их следует удалить как можно быстрее. Для этого используйте мягкое мыло и воду, а затем протрите сухой тканью. В случае трудновыводимых загрязнений можно применять специальные очистители, но обязательно проверяйте их на незаметном участке, чтобы избежать повреждений.
3. Защита от влаги
Шкаф-купе не следует размещать в помещениях с высокой влажностью, таких как ванные комнаты. Влага может привести к деформации материалов и образованию плесени. Если шкаф находится в таком помещении, рекомендуется использовать осушители воздуха или регулярно проветривать комнату.
4. Избегание перегрузки
При использовании шкафа-купе важно не перегружать его полки и ящики. Избыточный вес может привести к поломке механизмов и деформации конструкции. Следите за тем, чтобы вещи были равномерно распределены, и не ставьте слишком тяжелые предметы на верхние полки.
5. Проверка механизмов
Регулярно проверяйте состояние механизмов дверей. Если двери начинают заедать или плохо закрываются, возможно, потребуется смазка или регулировка. Используйте специальную смазку для механизмов, чтобы избежать износа и продлить срок службы.
6. Защита от солнечного света
Избегайте прямого солнечного света на поверхности шкафа, так как это может привести к выгоранию цвета и повреждению материала. Если шкаф стоит в месте, где на него попадают солнечные лучи, рассмотрите возможность использования штор или жалюзи для защиты.
7. Обработка антисептиками
Для деревянных шкафов рекомендуется периодически обрабатывать поверхность антисептиками, чтобы предотвратить появление грибка и насекомых. Выбирайте средства, которые безопасны для использования в домашних условиях и не имеют резкого запаха.
Следуя этим простым рекомендациям, вы сможете сохранить свой шкаф-купе в отличном состоянии на долгие годы, наслаждаясь его функциональностью и эстетикой.
Вопрос-ответ
Какие материалы понадобятся для сборки шкафа-купе?
Для сборки шкафа-купе вам понадобятся следующие материалы: ДСП или МДФ для каркаса и дверей, направляющие для дверей, крепежные элементы (шурупы, уголки), ручки, а также фурнитура для сборки (петли, ролики и т.д.). Не забудьте также о инструментах: дрель, отвертка, уровень и рулетка.
Как правильно измерить пространство для шкафа-купе?
Для правильного измерения пространства начните с определения высоты, ширины и глубины места, где будет установлен шкаф. Измерьте высоту от пола до потолка, ширину от одной стены до другой и глубину, учитывая, что стандартная глубина шкафа-купе составляет 60 см. Убедитесь, что вы учитываете любые выступы или неровности стен.
Как установить двери шкафа-купе?
Установка дверей шкафа-купе начинается с монтажа верхних и нижних направляющих. Убедитесь, что они установлены горизонтально и параллельно друг другу. Затем установите ролики на двери и вставьте их в направляющие. Проверьте, чтобы двери открывались и закрывались плавно, и при необходимости отрегулируйте высоту роликов.
Советы
СОВЕТ №1
Перед началом сборки шкафа-купе тщательно изучите инструкцию. Убедитесь, что у вас есть все необходимые детали и инструменты. Это поможет избежать лишних проблем и сэкономит время в процессе сборки.
СОВЕТ №2
Разделите процесс сборки на этапы. Начните с создания каркаса, затем переходите к установке дверей и полок. Такой подход поможет вам лучше организовать работу и не упустить важные шаги.
СОВЕТ №3
Обратите внимание на уровень пола и стен. Если они неровные, используйте подкладки или регулируемые ножки, чтобы шкаф стоял устойчиво. Это предотвратит проблемы с открыванием дверей и долговечностью конструкции.
СОВЕТ №4
Не забывайте о безопасности. Используйте защитные очки и перчатки при работе с инструментами. Также убедитесь, что шкаф надежно прикреплен к стене, чтобы избежать его опрокидывания.









