Установка подъемного механизма с газлифтом для кровати — важный шаг к созданию комфортного и функционального пространства. В статье рассмотрим, что такое газлифт, его преимущества и недостатки, а также устройство и принцип работы механизма. Узнаете, как правильно выбрать газлифт для кровати и получите советы по ремонту и обслуживанию. Эта информация поможет улучшить качество сна и оптимизировать использование пространства в спальне.
Что такое газлифт для кровати
В ряде моделей кроватей предусмотрен газовый лифт. Это уникальный механизм, который предназначен для подъема связанных с ним поверхностей. Он существенно облегчает процесс поднятия спального места кровати. Существуют два типа газовых лифтов: автоматические устройства, которые не требуют физического усилия и контроля со стороны пользователя, и фрикционные, которые используются гораздо реже.
Установка подъемного механизма для кровати с газлифтом требует внимательного подхода и соблюдения ряда рекомендаций. Эксперты подчеркивают, что прежде всего необходимо тщательно изучить инструкцию производителя, так как разные модели могут иметь свои особенности. Важно правильно выбрать место для установки механизма, чтобы обеспечить его максимальную функциональность и безопасность.
Специалисты советуют использовать качественные крепежные элементы и инструменты, чтобы избежать поломок в будущем. Перед началом работ следует убедиться, что все детали механизма находятся в хорошем состоянии. При монтаже газлифтов необходимо учитывать их силу и длину, чтобы обеспечить плавное и безопасное открытие и закрытие кровати.
Кроме того, эксперты рекомендуют проводить регулярное обслуживание механизма, проверяя его на наличие износа и повреждений. Это поможет продлить срок службы кровати и обеспечить комфорт в использовании.
https://youtube.com/watch?v=oT1dLQbk_5M
Преимущества и недостатки кроватей с газлифтом
Кровать с газовым подъемником обладает рядом значительных преимуществ:
- Широкий выбор моделей. Существуют как прямоугольные, так и круглые варианты;
- Удобство. Встроенное пространство идеально подходит для хранения одеял, постельного белья и сезонной одежды;
- Надежность и прочность механизма;
- Легкость в использовании. Верхняя часть кровати поднимается быстро и без особых усилий. Не нужны специальные навыки для подъема;
- Экономия. Пространство под кроватью можно использовать как альтернативу шкафу, что позволяет хранить даже хрупкие предметы;
- Оптимизация пространства. В отличие от выдвижных ящиков, не требуется дополнительное место перед кроватью;
- Долговечность. Срок службы может достигать 10 лет.
Однако у кроватей с газовым подъемником есть и некоторые недостатки:
- Цена. Стоимость таких кроватей выше, чем у традиционных моделей;
- Возможность накопления пыли;
- Некоторое неудобство. Доступ к вещам под спальным местом может быть затруднительным, особенно если кровать используется двумя людьми.
| Этап установки | Описание действия | Необходимые инструменты и материалы |
|---|---|---|
| 1. Подготовка | Распакуйте все детали подъемного механизма и проверьте их наличие согласно инструкции. Убедитесь, что у вас есть все необходимые инструменты. | Инструкция по сборке, все детали механизма, рулетка, карандаш, уровень. |
| 2. Разметка и крепление к основанию | Определите место установки механизма на основании кровати. Обычно это боковые царги или специальные поперечные балки. Сделайте разметку для крепления кронштейнов. | Рулетка, карандаш, уровень, шуруповерт/дрель, саморезы/болты (в зависимости от типа крепления). |
| 3. Установка кронштейнов на раму матраса | Прикрепите ответные кронштейны к раме, на которой будет лежать матрас. Убедитесь, что они расположены симметрично и на правильном расстоянии. | Рулетка, карандаш, шуруповерт/дрель, саморезы/болты. |
| 4. Монтаж газлифтов | Аккуратно установите газлифты между кронштейнами на основании и кронштейнами на раме матраса. Следуйте указаниям производителя по направлению установки. | Газлифты, крепежные элементы (обычно идут в комплекте с газлифтами). |
| 5. Регулировка и проверка | Поднимите и опустите раму матраса несколько раз, чтобы убедиться в плавности хода и отсутствии заеданий. При необходимости отрегулируйте положение кронштейнов. | Отсутствуют (проверка функциональности). |
| 6. Финальная сборка (если требуется) | Установите матрас на раму. Проверьте работу механизма с матрасом. | Матрас. |
Интересные факты
Вот несколько интересных фактов о том, как установить подъемный механизм для кровати с газлифтом:
-
Простота установки: Газлифты для кроватей обычно имеют простую конструкцию и могут быть установлены без специальных инструментов. Большинство комплектов поставляется с подробными инструкциями, что позволяет даже новичкам справиться с установкой.
-
Регулируемая сила подъема: Газлифты доступны в различных вариантах с разной силой подъема, что позволяет выбрать оптимальный механизм в зависимости от веса матраса и конструкции кровати. Это обеспечивает легкость в открывании и закрывании, а также долговечность механизма.
-
Экономия пространства: Установка подъемного механизма с газлифтом позволяет эффективно использовать пространство под кроватью. Это особенно полезно в небольших помещениях, где важно максимальное использование каждого квадратного метра. Подъемный механизм дает возможность хранить вещи, не занимая при этом дополнительное пространство.
https://youtube.com/watch?v=K4wriI0oQtw
Как устроен механизм
В состав подъемного механизма входят следующие элементы:
- цилиндр, заполненный инертным газом под высоким давлением;
- масляный демпфер (в случае автоматического механизма);
- поршень с штоком.
Принцип работы и технические характеристики
При поднятии спального места кровати газ расширяется и оказывает давление на поршень, который поднимает кровать вверх, тем самым снижая усилия, прикладываемые человеком. Использование масляной прокладки в корпусе обеспечивает плавный ход. Поскольку демпфер отсутствует при установке фрикционного механизма, устройство можно остановить в любой момент.
Цилиндр, шток, поршень и опорные наконечники изготавливаются из стали.
Ключевые технические характеристики:
- возможность эксплуатации в температурном диапазоне от -30 до +80 градусов;
- максимальная скорость движения штока – до 300 мм/с;
- давление внутри цилиндра не превышает 160 бар;
- толщина стенки цилиндра составляет не менее 1 мм.
Как правильно выбрать
При выборе механизма стоит обратить внимание на следующие аспекты:
- Усилие, которое может обеспечить система с учетом угла наклона. Для большой кровати это значение должно находиться в диапазоне 200-300 Н;
- Количество установленных газовых лифтов. Их количество влияет на силу сжатия. Рекомендуется устанавливать не более двух таких устройств;
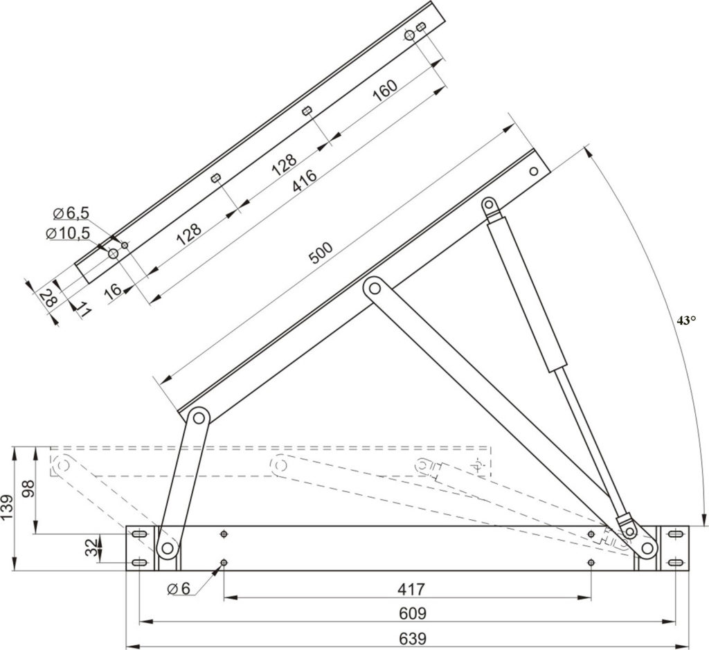
- Длина механизма. Этот параметр определяет угол подъема кровати;
- Производитель. Наилучшим вариантом будет выбор продукции от немецких компаний. Однако механизмы отечественного производства также имеют хорошую репутацию, что подтверждается отзывами пользователей.
Инструкция по установке и регулировке газлифта для кровати
От корректной установки газлифта зависит его долговечность.
Процесс установки подъемного механизма для кровати с газовыми лифтами необходимо выполнять строго в соответствии с рекомендациями производителя.
Чтобы собрать кровать с газлифтом, следует выполнить несколько ключевых шагов:
- Соберите каркас кровати, следуя указаниям производителя;
- Установите газлифты. Закрепление конструкции осуществляется с помощью шпилек или специальных саморезов, которые обычно идут в комплекте. Механизм крепится за проушины газлифта к каркасу кровати. Некоторые модели имеют уникальную конструкцию и могут быть односторонними. В таком случае важно установить их с правильной стороны (обратите внимание на форму цилиндров);
- Соберите откидную ортопедическую решетку кровати. Каркас решетки может иметь различные формы. Обычно он выполнен из цельнометаллического материала, но иногда используется древесина или другие материалы (следуйте указаниям производителя);
- Закрепите газлифт к верхнему откидному элементу кровати. К нижней части кровати устройство крепится в открытом состоянии откидной части. Лучше всего устанавливать механизмы вдвоем: один человек держит верхнюю откидную решетку, а другой выполняет монтаж. Важно установить газлифт штоком вниз (цилиндр должен находиться сверху). Установка газлифта штоком вверх является распространенной ошибкой и может привести к поломке конструкции. Если шток установлен вверх, то крепежная шпилька и монтажные проушины могут сломаться. При креплении важно затянуть гайки, но не слишком сильно. В противном случае механизм может не двигаться свободно, и можно повредить резьбу. Приспособления со штоком вверху встречаются крайне редко, и это обязательно должно быть указано в паспорте производителя;
- После сборки всей конструкции протестируйте систему несколько раз для проверки ее работоспособности.
Если система работает некорректно, необходимо заново установить механизмы.
При обнаружении неточных движений важно сразу устранить неполадки. Потребуется произвести регулировку или переустановку механизма. В противном случае они могут быстро выйти из строя при эксплуатации. Для настройки приспособлений можно отрегулировать углы наклона. На внутренней поверхности цилиндра газлифта имеется резьба, и поворачивая механизм, можно немного удлинить или укоротить его. Также можно сделать разметку на основании кровати для установки механизма в другом месте.
Как отремонтировать своими руками
Снимать лифтовый механизм для ремонта возможно лишь в том случае, если он находится не в сжатом состоянии и цилиндр не имеет повреждений. Для успешного ремонта газлифта необходимо прежде всего разобраться в его конструкции и определить причины неисправности или поломки устройства.
Следует обратить внимание на следующие аспекты:
- Установка подъемного механизма должна осуществляться только в открытом положении газлифта;
- Крепления устройства должны быть надежно зафиксированы в проушинах с помощью шпилек и болтов. Крепление должно быть выполнено так, чтобы механизм мог свободно перемещаться при подъеме и опускании верхней части кровати. Шпильки и болты не должны быть слишком затянуты;
- Демонтаж следует проводить в открытом положении газлифта, начиная с откручивания крепежных элементов.
Основные причины неисправностей или поломок:
- Попадание пыли, химических веществ и механические повреждения. Это может привести к повреждению уплотнений механизма и значительно сократить его срок службы. При использовании газлифта необходимо соблюдать осторожность;
- Утечка масла или газа из устройства. В таком случае можно заправить цилиндр смазкой. Ни в коем случае не следует пытаться вскрывать газлифт, так как внутри цилиндра присутствует высокое давление;
- Неправильный выбор силы газлифтов изначально. Они подбираются примерно из расчета 10 Н на 1 кг нагрузки. Если вес основания кровати с матрасом составляет около 30 кг, то каждое устройство должно быть рассчитано на 300 Н. В случае ошибки в расчете необходимо заменить устройство.
При серьезных повреждениях требуется замена устройства. Если же неисправности незначительные, можно просто провести дополнительную регулировку.
В каких случаях необходима помощь специалиста
Монтаж газлифтов включает в себя множество тонкостей. Если вы не обладаете достаточными знаниями о механизмах и не понимаете причин их неисправностей, а также сомневаетесь в своих силах выполнить установку на должном уровне, лучше доверить эту задачу профессионалу. Наилучший вариант – обратиться к специалистам для сборки мебели или ремонта. Они помогут выбрать подходящий стиль, размеры и конструкцию мебели, а также определят наиболее подходящие характеристики подъемного механизма.
Рекомендации и советы
Необходимо учитывать, что газлифты имеют разнообразие по размерам, толщине металла и максимальной нагрузке, которую они могут выдерживать.
Длина газлифта определяется как расстояние между двумя крепежными ушками устройства. Внутри цилиндра находится смазка, которая во время работы перемещается вниз, обеспечивая смазку механизма. Правильно установленный газлифты позволяют легко поднимать основание кровати.
После установки всех компонентов важно проверить углы подъема.
Если газлифты хранились длительное время перед установкой, в начале их работы может потребоваться значительное усилие.
Тестирование работоспособности устройств следует проводить на кровати с матрасом. Без нагрузки каркас может не удерживаться в закрытом положении и подниматься.
Не стоит проверять газлифты вручную, так как исправный механизм не должен сжиматься. Если он сжимается под давлением рук, это указывает на поломку. Газовая пружина с силой 300Н не должна двигаться от усилия рук.
Механизм нельзя подвергать ударам, разрезать или нагревать цилиндр, так как внутри него находится высокое давление, что может представлять опасность для здоровья.
При использовании также следует избегать изгибов и деформаций механизма.
Видео: как правильно установить газлифты на кровать
https://youtube.com/watch?v=oT1dLQbk_5M
50 вариантов дизайна кроватей с подъёмным механизмом
Часто задаваемые вопросы о газлифте для кровати
Как выбрать газлифты для кровати?
При выборе газлифтов для кровати важно учитывать несколько факторов, чтобы обеспечить надежность и долговечность механизма. Во-первых, необходимо определить вес матраса и других элементов, которые будут подниматься. Газлифты имеют разные уровни нагрузки, поэтому важно выбрать модель, которая сможет выдержать общий вес.
Как установить газлифты на кровать?
Установка газлифтов на кровать требует внимательности и точности. Начните с подготовки необходимых инструментов: вам понадобятся отвертка, ключи, а также, возможно, дрель. Убедитесь, что у вас есть все необходимые комплектующие, включая крепежные элементы и сам газлифты.
1. Подготовка основания: Убедитесь, что основание кровати прочное и может выдержать нагрузку. Если необходимо, укрепите его дополнительными планками или уголками.
2. Установка креплений: На основании кровати установите крепления для газлифтов. Обычно они идут в комплекте с механизмом. Убедитесь, что крепления расположены на одинаковом расстоянии от края, чтобы обеспечить симметричное открытие.
3. Закрепление газлифтов: Установите газлифты в крепления. Обычно это делается путем простого нажатия на механизм, но в некоторых случаях может потребоваться использование винтов. Убедитесь, что газлифты надежно зафиксированы и не имеют люфта.
4. Проверка работы механизма: После установки газлифтов проверьте их работу. Поднимите и опустите основание кровати несколько раз, чтобы убедиться, что механизм работает плавно и без заеданий.
Как ухаживать за газлифтом?
Для того чтобы газлифты служили долго, необходимо следить за их состоянием. Регулярно проверяйте крепления на наличие ослаблений и при необходимости подтягивайте их. Также рекомендуется периодически смазывать механизмы специальными средствами, чтобы избежать коррозии и заеданий.
Что делать, если газлифты не работают?
Если газлифты перестали работать, сначала проверьте все крепления и убедитесь, что они не ослаблены. Если проблема не в креплениях, возможно, газлифты вышли из строя и требуют замены. В этом случае лучше обратиться к специалисту или в сервисный центр для диагностики и ремонта.
Где купить газлифты для кровати?
Газлифты можно приобрести в специализированных магазинах мебели, а также в интернет-магазинах. При покупке обращайте внимание на отзывы и репутацию производителя, чтобы выбрать качественный и надежный продукт.
Вопрос-ответ
Как выбрать подходящий газлифтовый механизм для кровати?
При выборе газлифтового механизма важно учитывать вес матраса и конструкции кровати. Обычно производители указывают максимальную нагрузку на газлифты, поэтому выбирайте механизм, который соответствует весу вашей кровати и матраса. Также обратите внимание на длину газлифта, чтобы он подходил к вашей конструкции.
Какие инструменты понадобятся для установки газлифтового механизма?
Для установки газлифтового механизма вам понадобятся следующие инструменты: отвертка, ключи, дрель (если требуется сверление), а также уровень для проверки горизонтальности. Также может понадобиться рулетка для точных измерений и карандаш для разметки мест крепления.
Как правильно установить газлифтовый механизм на кровать?
Установка газлифтового механизма начинается с разметки мест крепления на каркасе кровати. Затем прикрепите крепления газлифта к каркасу и основанию кровати, следуя инструкциям производителя. Убедитесь, что все элементы надежно зафиксированы, и проверьте работу механизма, поднимая и опуская матрас.
Советы
СОВЕТ №1
Перед началом установки подъемного механизма с газлифтом, внимательно изучите инструкцию производителя. Убедитесь, что у вас есть все необходимые инструменты и детали, чтобы избежать задержек в процессе сборки.
СОВЕТ №2
При установке газлифта обязательно соблюдайте меры предосторожности. Работайте в перчатках и защитных очках, чтобы избежать травм. Также рекомендуется иметь помощника, который поможет удерживать элементы на месте во время установки.
СОВЕТ №3
Проверьте совместимость газлифта с вашей кроватью. Убедитесь, что выбранный механизм подходит по размеру и весу, чтобы обеспечить безопасное и эффективное использование. Неправильный выбор может привести к поломке или травмам.
СОВЕТ №4
После установки протестируйте механизм несколько раз, чтобы убедиться, что он работает плавно и без заеданий. Если вы заметили какие-либо проблемы, обратитесь к инструкции или свяжитесь с производителем для получения рекомендаций по устранению неполадок.








